A magazine-like interior, a balcony overlooking the greenery and yet only 6 minutes to the city centre... Do you want to live modernly, in peace and within easy reach of nature? On the outskirts of the Studánka district, a renovated apartment awaits you, which will make all your dreams of comfortable living come true.
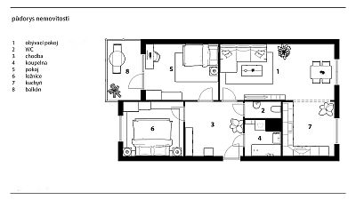
The apartment has a layout of 3+1, an area of 71.3 m² and is located on the top floor of a revitalized panel house. There are only two apartments on the floor - you will have privacy in the corridor and peace over your head.
The whole apartment has been completely renovated in the last 5 years. Designer ceilings with lighting, acoustic slatted panels, large format tiles... this interior is like something out of a modern living magazine.
The living room and kitchen form one generously proportioned space, dominated by a TV wall and white kitchen unit with built-in appliances. The latter is cleverly hidden around the corner so that visitors cannot see untidy dishes from the sofa.
Two large bedrooms provide plenty of privacy for the whole family to work, relax and study. One of them has access to a large balcony - just lean out and you have the Spojilské lesy in the palm of your hand.
The apartment also includes a loggia on the floor, which you will share with the neighboring apartment. You can also use your own spacious cellar of 4 m².
A few steps from the house there is a bus stop, grocery store, delivery service... In short, everything you need to have at hand. Not far from the kindergarten or bigger shops, you can reach the centre in 6 minutes. And parking? It's free in front of the house.
Want to see more? Just write or call me and I will be happy to show you around in person.
Adam Ruzicka
(The area of the apartment was based on the owner's declaration of 22 September 2003, filed in the collection of documents of the relevant cadastral office.)





















