This superior apartment 3 + kk of 89 m² offers not only top design, but also maximum comfort. Thanks to ingeniously designed storage spaces, two loggias and first-class furnishings, you will enjoy comfortable living without compromise.
Are you looking for an apartment that combines elegance with practicality? This meticulously renovated apartment offers not only a luxurious kitchen with high-end appliances, but also built-in wardrobes, air conditioning and modern lighting controllable from your mobile phone. Every detail has been thought out to provide maximum comfort.
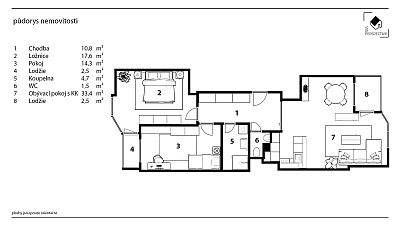
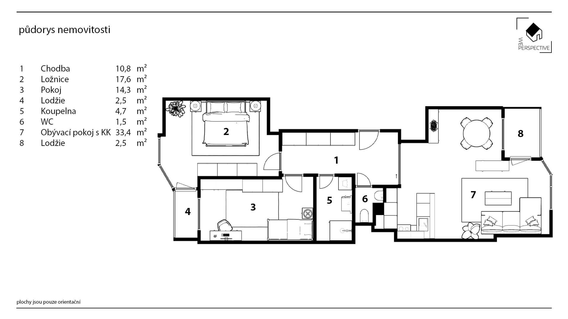
Superior apartment 3+kk with 2 loggias for sale
Are you looking for a superior apartment that combines modern design, high-end equipment and practicality? This spacious 3-bedroom apartment (89 m²) offers everything you need - two loggias, built-in furniture, a luxury kitchen with high-end appliances and smart lighting controlled by mobile phone. In addition, air conditioning, a spacious basement and the possibility of buying two garages. Just bring your toothbrush and you can live! Come and see this unique apartment in person.
Sold
Layout 3+kk
Total area 89 m2
Spacious cellar 5 m2































