Ráno odvést děti do školky, v klidu dopít kávu a za deset minut být v centru… Žádný spěch, žádný stres. Přesně tohle nabízí cihlová novostavba v tiché pardubické vilové čtvrti. Taková adresa se tady uvolní jen jednou za čas – a právě teď může být Vaše.
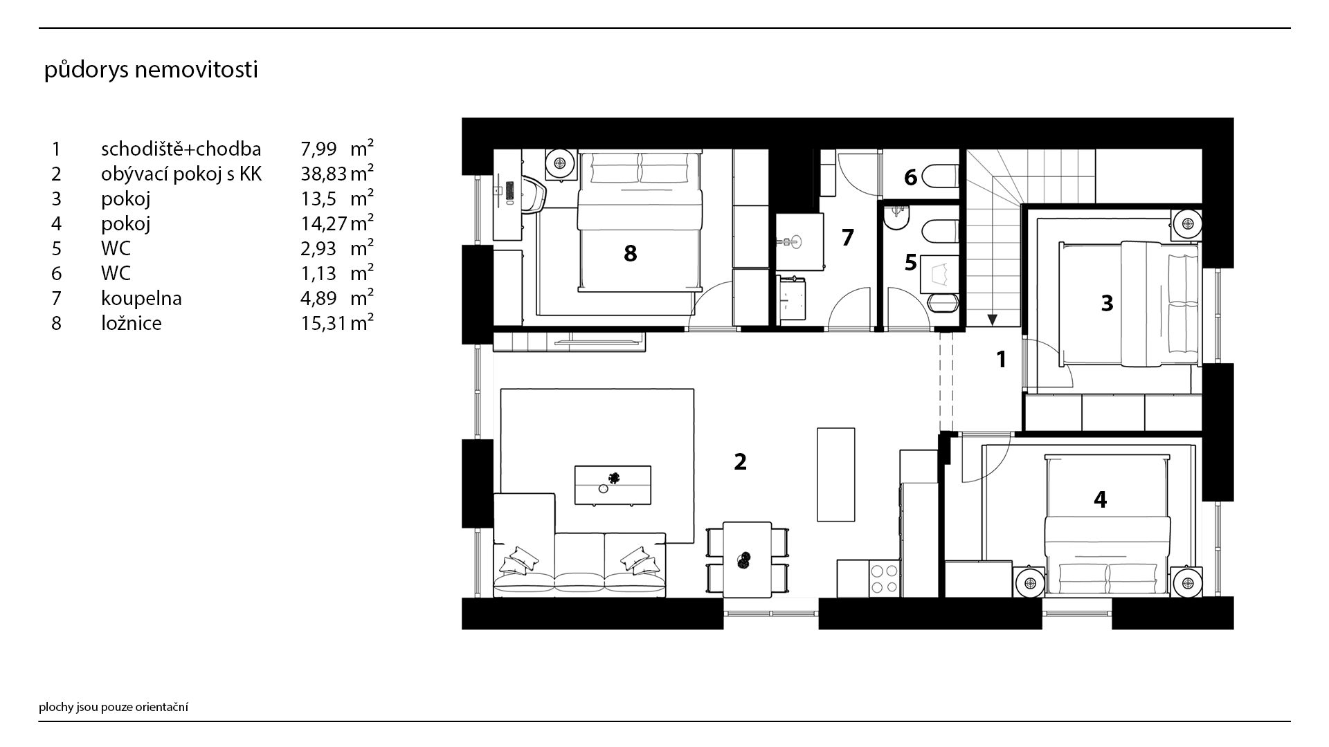
Byt má dispozici 4+kk, výměru 107 m2 a je součástí moderní butikové rezidence, kde je celkem pouze 5 bytů. Ten Váš se skládá z obývacího pokoje s kuchyní, 3 ložnic, koupelny a 2 záchodů.
V přízemí s velkou skříní na míru necháte kabáty i zablácené boty a vyjdete do patra, kde na Vás čeká světlý obytný prostor.
Jeho srdcem je obývák s výměrou téměř 39 m2 a nadstandardně zařízenou kuchyní. Velká francouzská okna pouštějí dovnitř maximum světla a posuvné dveře ho oddělují od dvou ložnic, ze kterých budou například hezké dětské pokojíky. A protože jsou stěny odhlučněné, usínající děti neprobudíte ani filmový večerem.
Hlavní ložnice je na druhé straně bytu, takže v ní budete mít klid a soukromí. V koupelně je sprchový kout a toaleta je oddělená dveřmi. Navíc je tu ještě samostatná technická místnost s druhým WC.
Byt si majitelé zařizovali pro sebe a je to na něm znát. Kuchyně je z odolného akrylu a pracovní deska z keramiky. Podlaha je rigidní a vhodná i pro alergiky. Nešetřilo se ani na zateplení nebo akustice – okna mají trojskla, strop zateplení navíc a stěny trojité odhlučnění.
O maximální tepelný komfort se starají předokenní žaluzie a klimatizace. V garáži je odvápňovací stanice, která ochrání vaše spotřebiče před tvrdou pardubickou vodou. A nechybí ani příprava na centrální vysavač.
Na zahrádku to budete mít ze dveří pár kroků. Je oplocená – psa nebo děti vypustíte ven klidně bez dozoru. Je taky dost daleko od ulice na to, abyste tu měli klid na knížku nebo kávu. Zalévat budete ze studny s užitkovou vodou přímo na zahradě.
Ani s parkováním si hlavu lámat nemusíte. K bytu patří dvě garážová stání i se zásuvkami na vysávání auta a další.. Prodávají se samostatně za 745 tisíc Kč/stání – jejich cena není zahrnuta v ceně bytu.
Dům z roku 2022 stojí v klidné rodinné lokalitě s minimálním provozem, ale skvělou dostupností. V okolí jsou dvě školky, do centra je to pěšky 10 minut a kousek je to i na některou ze zastávek MHD. Za 2 minuty jste na obchvatu, takže cestou do Ohrazenic nebo Hradce nemusíte přes město.
Chcete vidět víc? Stačí mi napsat nebo zavolat a rád Vás tu provedu osobně.
Adam Růžička


































