Vlastní dům se zahrádkou za cenu bytu… to se v Pardubicích jen tak nevidí. Obzvlášť, když stojí v klidné slepé ulici a veškerá vybavenost je hned po ruce. Přijďte se podívat na kompaktní dům do Černé za Bory – z centra jste tu již za 9 minut.
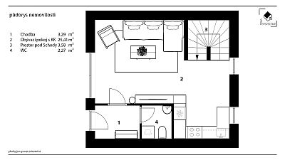
Jedná se o patrový dům s dispozicí 3+kk a celkovou výměrou 71,5 m². V přízemí je obývací pokoj s kuchyní, předsíň a toaleta. Po schodech vyjdete do patra se dvěma ložnicemi, koupelnou s vanou a WC a zasklenou lodžií.
Obývák je díky jihozápadní orientaci plný světla i po celé odpoledne. A minimalistická kuchyňská linka je šikovně schovaná za rohem, takže návštěva z gauče neuvidí nádobí ve dřezu.
V patře je hlavní ložnice s přístupem na zasklenou lodžii, ze které si můžete udělat útulnou zimní zahradu. Druhý pokoj poslouží jako dětský pokojíček nebo pracovna. V moderní koupelně je vana a WC.
Kompaktní rozměry domu mají jednu velkou výhodu – úklidem nestrávíte celý den, a přesto tu bude mít každý svůj prostor a soukromí.
A totéž platí i venku. Zahrada s výměrou 50 m2 je ideální pro každého, kdo si chce posedět na terase a sklidit pár jahod, ale netrápit se sekáním obřího trávníku.
Dům stojí na kraji zástavby ve slepé ulici s výhledem na pole. Děti si můžou klidně vyběhnout ven a vy se o ně nemusíte bát – do ulice zajíždí jen sousedi.
Od světa tu ale odříznutí nebudete. Do školky je to pěšky 7 minut, stejně jako do restaurace, samoobsluhy nebo vinotéky. V Černé za Bory je zastávka autobusu i vlaková stanice a autem jste v centru Pardubic za 9 minut.
Nudit se tu taky nebudete. Ve vedlejší ulici je multifunkční hřiště, workout i dětské hřiště a po cyklostezce dojedete od domu až k Nemošické stráni.
Chcete vidět víc? Stačí mi napsat nebo zavolat a rád Vás tu provedu osobně.
Adam Růžička


























