Vlastní slunná zahrada, interiér co voní novotou a centrum Pardubic pár minut jízdy… Hledáte nadstandardní rodinné bydlení s perfektní dostupností? Na kraji města na vás čeká moderní novostavba, která vám splní sny o pohodlném a úsporném životě.
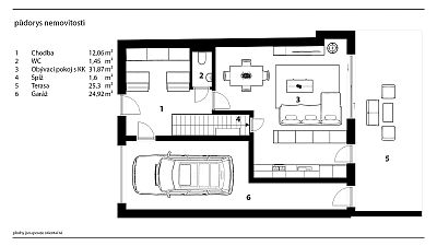
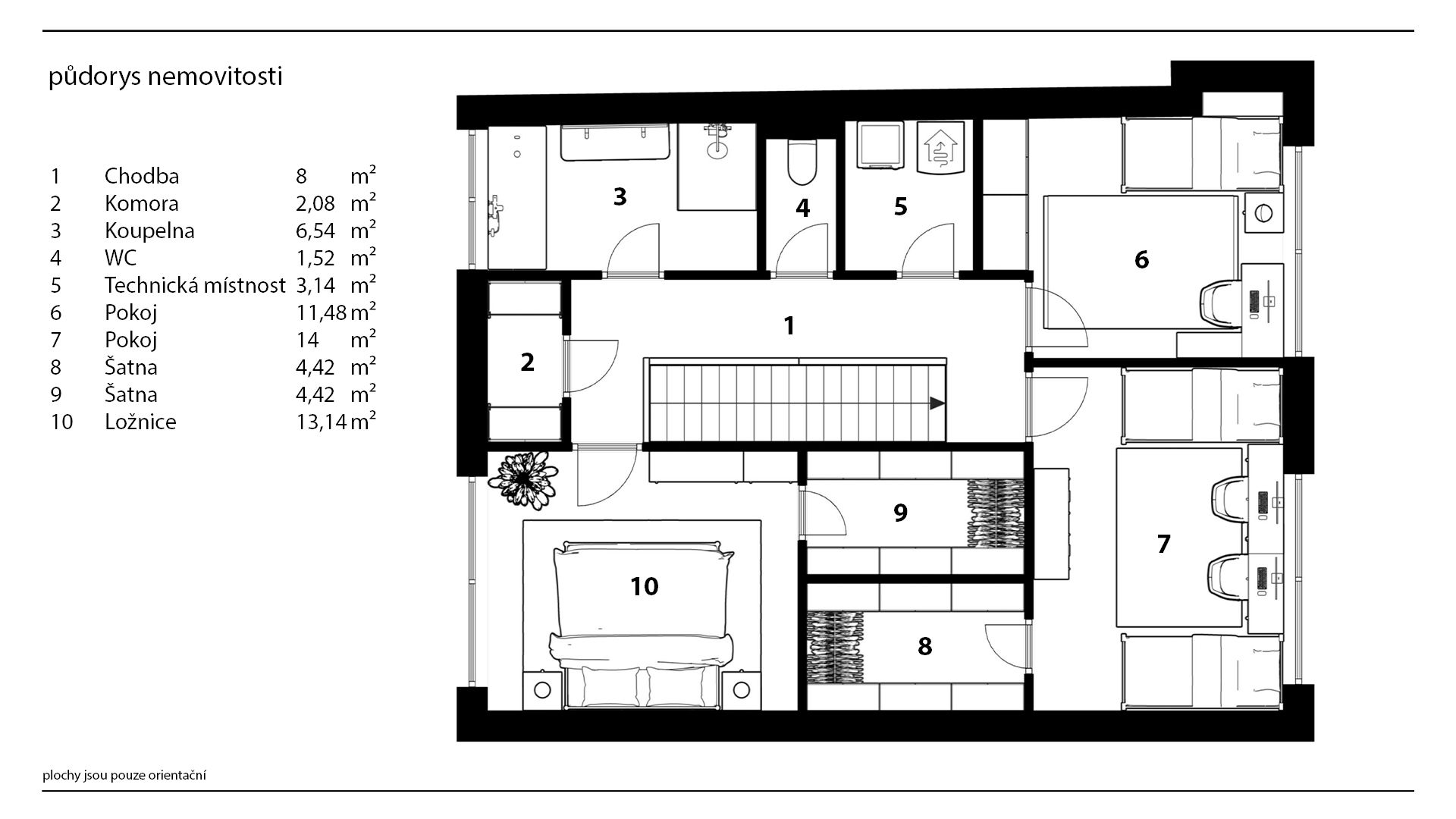
Dům je patrový, má dispozici 4+kk a výměru 141 m2. V přízemí je obývací pokoj s kuchyňskou linkou, v zádveří toaleta a vstup do garáže, v patře tři ložnice, koupelna a samostatné WC.
Interiér je nový, světlý a moderní – zkolaudováno bylo na konci roku 2025. V kuchyni je kompletně vybavená moderní bílá linka s ostrůvkem a do obývacího pokoje se o svátcích vejdete s celou rodinou.
A v létě si ho ještě zvětšíte. Stačí otevřít portál na terasu, kde budete mít absolutní soukromí. Od sousedů vás dělí vysoká zeď a můžete si užívat sluníčka, aniž by vás někdo rušil.
Po schodech vystoupáte do patra, kde jsou tři prostorné ložnice. O místo na odpočinek, práci nebo psaní úkolů tu tak nouzi mít nebudete.
V koupelně je vana i sprchový kout a toalety jsou tu hned dvě – jedna v přízemí a druhá v patře vedle koupelny.
Doma budete mít vždycky pořádek. Dvě ložnice mají vlastní šatnu, na chodbě v zádveří je další šatna na míru, v kuchyni spíž a v patře komora a technická místnost. Nechybí ani velká garáž, kam se vám kromě auta vejdou i kola, motorka nebo pracovní koutek.
Zahrada o velikosti 385 m² je dost velká na bazén, dětské hřiště, záhonky, stromky a všechny vaše záliby a koníčky.
A myslelo se i na moderní technologie, co vám zjednoduší život. Venkovní žaluzie, vstupní dveře, vrata, indukční desku, troubu, tepelné čerpadlo i fotovoltaiku budete ovládat jednoduše přímo z mobilu.
Dům stojí na konci ulice, na kterou navazuje cyklostezka směr Chrudim. Za rohem je mateřská školka a hřiště. K zastávce trolejbusu je to kousek pěšky a když je dobrý provoz, můžete být autem v centru Pardubic za 7 minut.
Chcete vidět víc? Stačí mi napsat nebo zavolat a rád Vás tu provedu osobně.
Adam Růžička








































