Světlý interiér, dvě koupelny, velká zahrada a školka jen pár kroků… Hledáte moderní rodinné bydlení s perfektní dostupností do Pardubic? Čeká na Vás v domku v Rozhovicích.
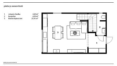
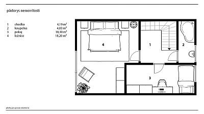
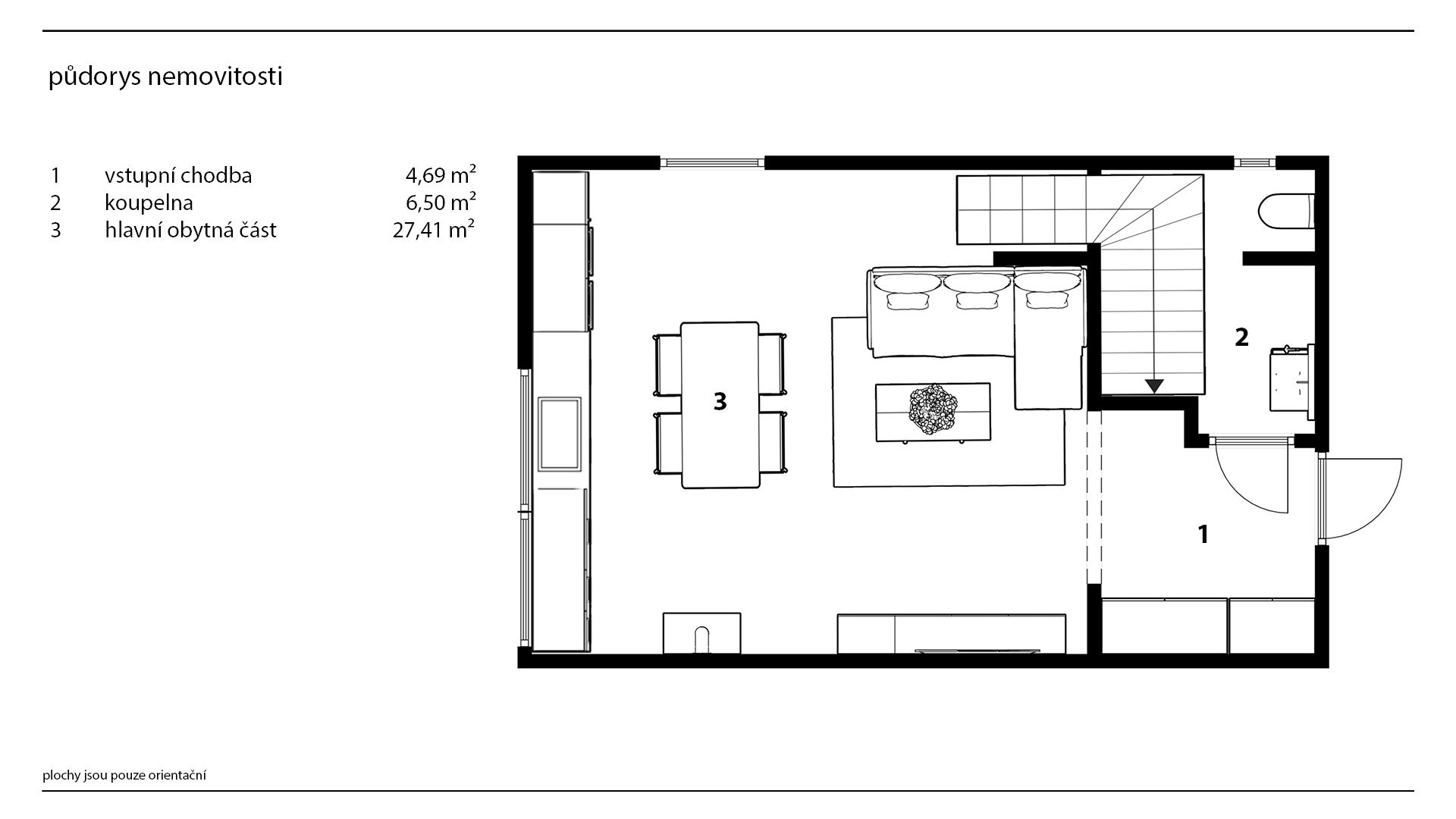
Dům je patrový, má dispozici 3+kk a výměru 80,3 m². V přízemí je obývací pokoj s kuchyňskou linkou a koupelna s WC, v patře dvě ložnice a koupelna s vanou a toaletou.
Interiér je zařízený moderně a nadčasově. Bílá kuchyňská linka, šedá stěrka a dřevěné prvky se Vám jen tak neokoukají. Obytná část je navíc orientovaná na jih přímo do zahrady – světla tu budete mít vždycky dost.
K domu patří zahrada o velikosti téměř 500 m². Od sousedů je oddělená vysokým plotem, takže tu budete mít soukromí. Ve spodní části je terasa na letní posezení u grilu a zbytek zahrady využijete přesně podle sebe – místa je tu dost na záhonky se zeleninou, dětské hřiště i bazén.
Parkovat můžete přímo před domem a na výstavbu garáže nebo přístřešku už tu jsou připravené sítě.
Na katastru je nemovitost vedená jako byt se zahradou. Dům byl postavený v roce 2022 a jelikož je řádně udržovaný, stále voní novotou. Stačí se sbalit a můžete bydlet.
Stěhovat se budete do klidné čtvrti s rodinnými novostavbami a přátelskou atmosférou. V obci je školka, hospoda, obchod i benzínka a se sousedy se můžete lépe poznat na plesech, koncertech a akcích pro děti. A do Chrudimi nebo Pardubic je to čtvrt hodinka jízdy.
Chcete vidět víc? Stačí mi napsat nebo zavolat a rád Vás tu provedu osobně.
Adam Růžička




































